MARRIAGE

・交際一年半後から婚約可能、二年で結婚可能
・婚約、結婚のどちらの場合も、プロフィールページとカップルページに記載
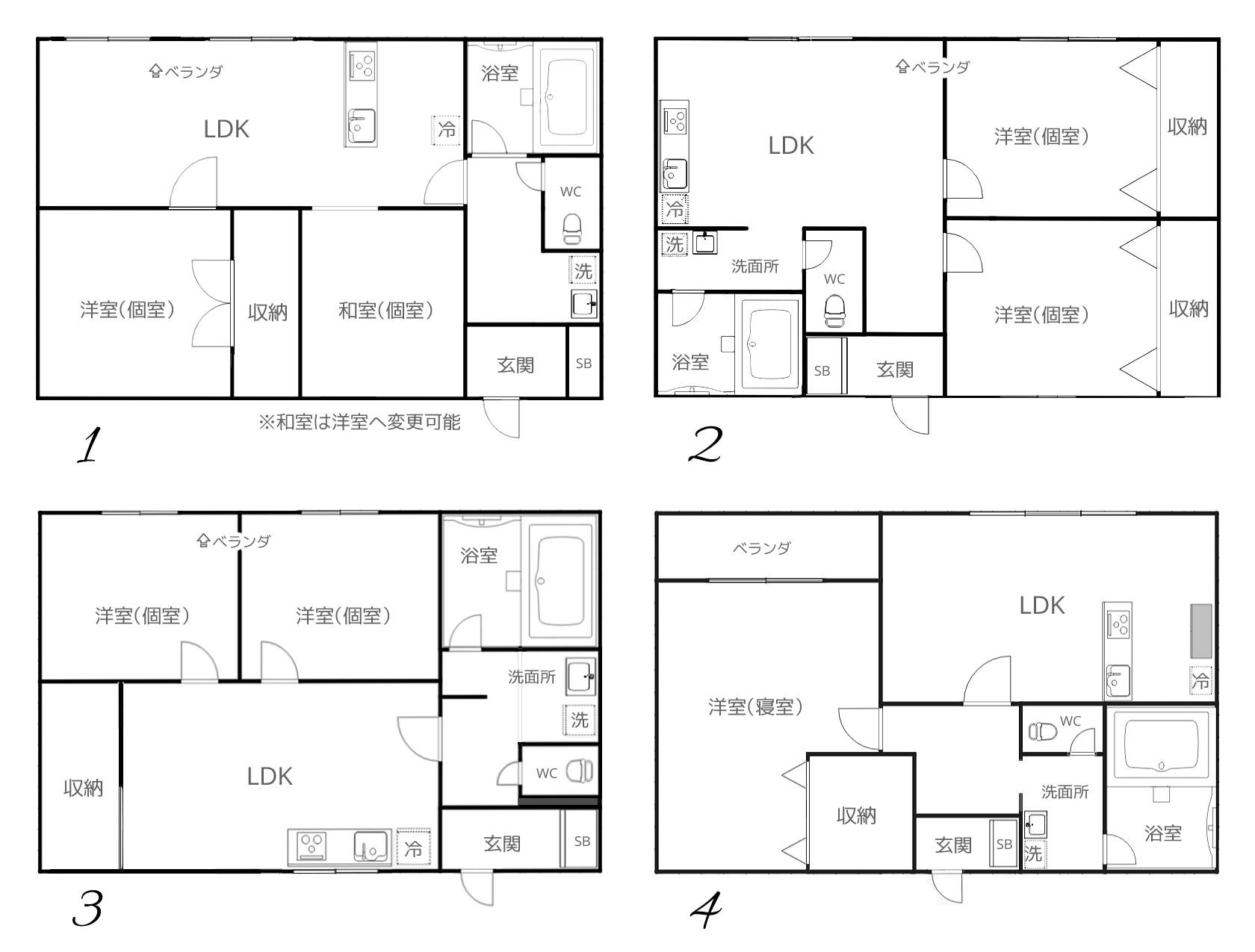
・結婚後は、夫婦用のお部屋をご用意します
 →各個室のある3LDKか、共用リビングが広いタイプのどちらか選択制【間取り】
・夫婦別姓が可能です
 (マラカイトは夫婦別姓が認められた現代日本の設定です)
 詳細システムに関しては、婚約及び結婚をご希望の際、管理人へご相談ください